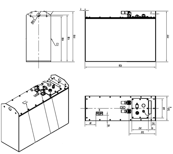
ابعاد باتری لیفتراک برقی
یکی از مهمترین عواملی که هنگام خرید یا تعویض باتری لیفتراک برقی باید به آن توجه کرد، ابعاد فیزیکی باتری است. بسیاری از مدیران انبارها و صاحبان
صنایع تصور میکنند فقط ولتاژ و آمپرساعت باتری اهمیت دارد؛ در حالی که ابعاد باتری، نه تنها در جایگذاری و نصب اهمیت دارد، بلکه بر پایداری، ایمنی
و حتی تعادل لیفتراک نیز تأثیرگذار است.
چرا ابعاد باتری لیفتراک مهم است؟
تطابق با فضای محفظه باتری
هر لیفتراک طراحی خاص خود را دارد و شرکتهای سازنده برای باتری آن فضایی با طول ، عرض و ارتفاع مشخص در نظر میگیرند. انتخاب باتری بزرگتر
باعث میشود در جایگاه جا نشود و انتخاب باتری کوچکتر هم ممکن است موجب حرکت و تکان باتری در حین کار و ایجاد اتصال یا آسیب به کابلها گردد.
حفظ تعادل و ایمنی لیفتراک
وزن و ابعاد باتری با هم مرتبطاند. اگر باتری کوچکتر یا سبکتری نصب کنید، ممکن است مرکز ثقل لیفتراک تغییر کند. این موضوع باعث عدم تعادل و حتی
چپ شدن لیفتراک در زمان حمل بار میشود.
استانداردهای ابعاد باتری لیفتراک
استاندارد DIN و BS
ابعاد باتریهای لیفتراک معمولاً براساس دو استاندارد جهانی ساخته میشود:
DIN (آلمانی) که پرکاربرد در بازار ایران است. معمولاً این باتریها دارای ارتفاع بیشتری هستند.
BS (بریتانیا) که عموماً عرض بیشتری دارند.
این استانداردها مشخص میکنند هر باتری باید چه طول،عرض و ارتفاعی داشته باشد.به همین دلیل دانستن این استانداردها هنگام خرید باتری جایگزین
بسیار مهم است.
جدول تقریبی سایزها

برای نمونه:
| ولتاژ | تعداد خانه | حدود طول (mm) | حدود عرض (mm) | حدود ارتفاع (mm) |
|---|---|---|---|---|
| 24V | 12 | 830-900 | 210-245 | 600-780 |
| 48V | 24 | 900-1200 | 300-400 | 600-800 |
(ابعاد دقیق براساس سازنده متفاوت است.)
نکات کلیدی در انتخاب ابعاد مناسب باتری لیفتراک
اندازهگیری محفظه باتری
قبل از خرید باتری جدید، محفظه باتری لیفتراک را بهطور دقیق اندازهگیری کنید:
طول: از دیواره جلو تا عقب محفظه
عرض: از کناره به کناره
ارتفاع: از کف محفظه تا سقف
درنظر گرفتن فضای تهویه و حرکت کابلها
همیشه چند میلیمتر فضای آزاد در اطراف باتری برای تهویه مناسب و حرکت ایمن کابلها در نظر بگیرید. این کار باعث جلوگیری از داغ شدن باتری و
آسیب به کابلها میشود.
وزن متناسب با ابعاد
باتریای که ابعاد مناسبی دارد، وزنی مطابق با طراحی لیفتراک هم خواهد داشت.برای مثال اگر لیفتراک۳ تنی شما نیاز به باتری حدود۱۲۰۰کیلوگرمی
دارد، باتری کوچکتر ممکن است وزن کافی را تأمین نکند و تعادل دستگاه بههم بخورد.
اشتباهات رایج در انتخاب ابعاد باتری لیفتراک
توجه نکردن به استاندارد تولید
گاهی باتری از نظر ولتاژ و آمپرساعت درست انتخاب میشود، اما چون براساس استاندارد DIN یا BS متفاوتی ساخته شده، در محفظه جا نمیشود.
پیش از خرید حتماً استاندارد طراحی باتری فعلی لیفتراکتان را بررسی کنید.
جایگذاری اجباری
برخی افراد برای صرفهجویی، باتری کوچکتر از فضای محفظه میخرند و با قطعههای چوبی یا فلزی آن را ثابت میکنند. این کار بسیار خطرناک است
و در زمان ترمز ناگهانی یا حرکت روی سطح ناهموار، احتمال آسیب دیدن کابلها یا حتی جرقه و آتشسوزی را بالا میبرد.
اهمیت ابعاد در کنار مشخصات الکتریکی
ابعاد باتری لیفتراک برقی، به اندازه ولتاژ و ظرفیت آمپر ساعت آن اهمیت دارد. رعایت تطابق ابعاد با محفظه، توجه به استاندارد سازنده، و در نظر گرفتن
وزن مناسب، همگی باعث افزایش ایمنی، کاهش استهلاک دستگاه و بهبود طول عمر باتری خواهند شد.
برای مشاوره و خرید با ما در ارتباط باشید.





